MAIN PAGE
← BACK TO LECTURE 17
PL
EN
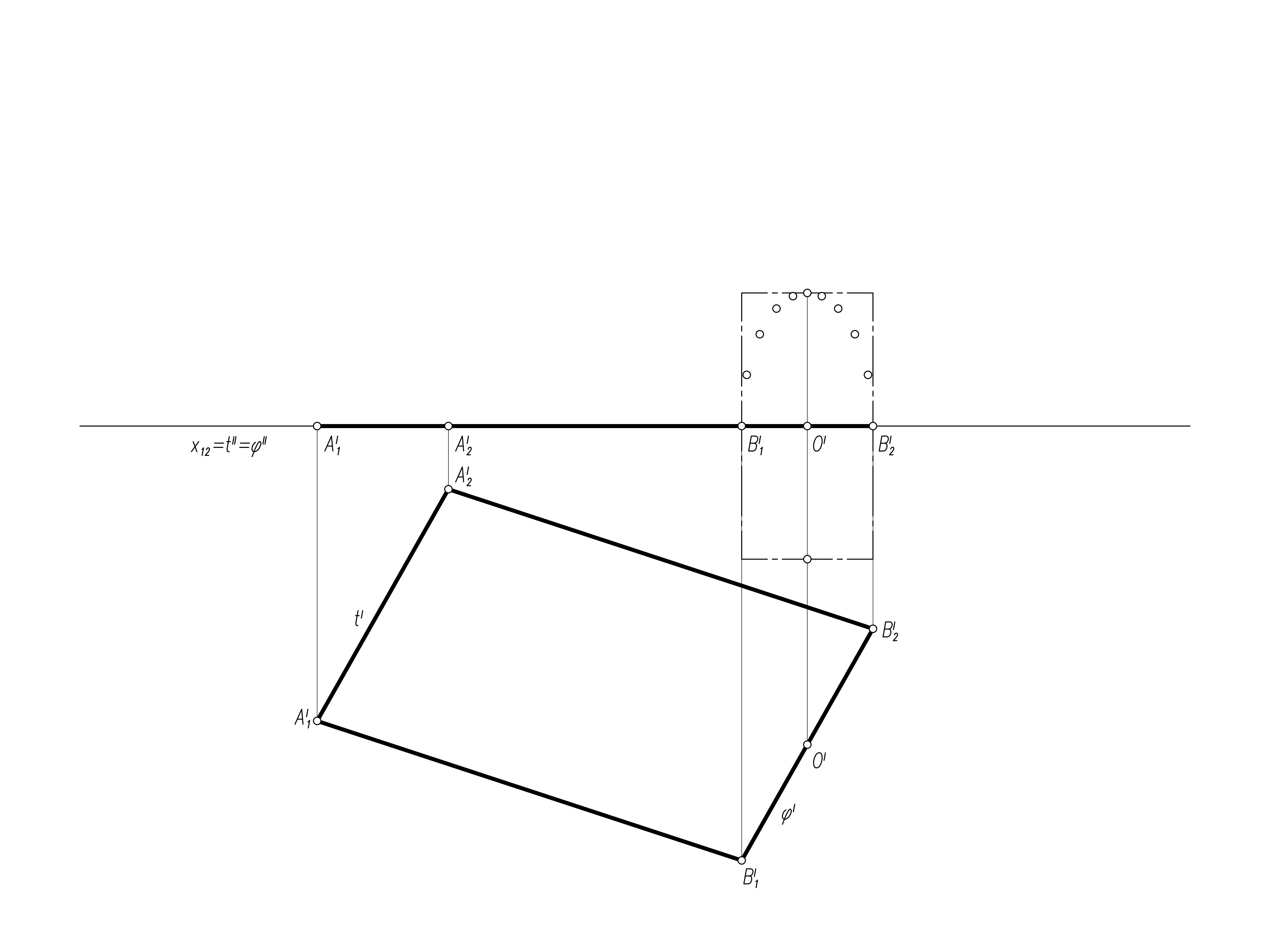
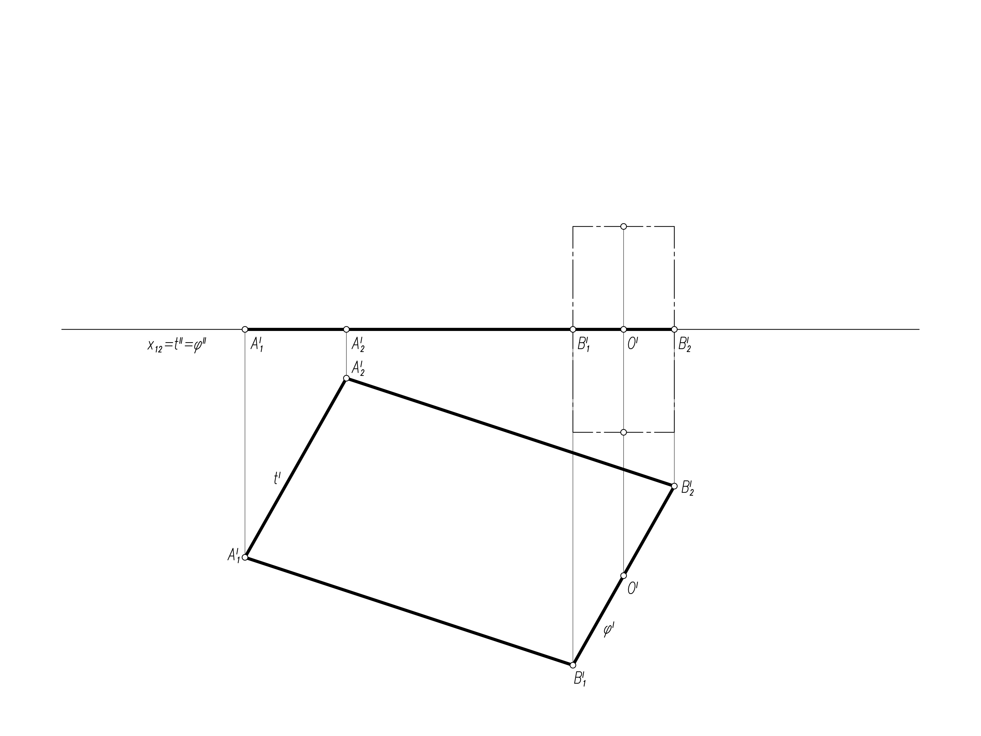
Lecture 17 - Part 3 - Task 1 (conoid)
▶ PLAY
⏪ 15s
◀ PREVIOUS
NEXT ▶
15s ⏩
FULLSCREEN
1x
1.25x
1.5x
2x
SLIDE:
1
/
23
1
23
Do you have questions about the slide above? Ask them below via the contact form.
QUESTION TO:
Lecture 17 - Part 3 - Task 1 (conoid), SLIDE 1
Your email address:
Comment:
SEND
×
1
23
▶ PLAY
⏪ 15s
◀ PREVIOUS
NEXT ▶
15s ⏩
EXIT FULLSCREEN
1x
1.25x
1.5x
2x
SLIDE:
1
/
23