STRONA GŁÓWNA
← POWRÓT DO WYKŁADU 17
PL
EN
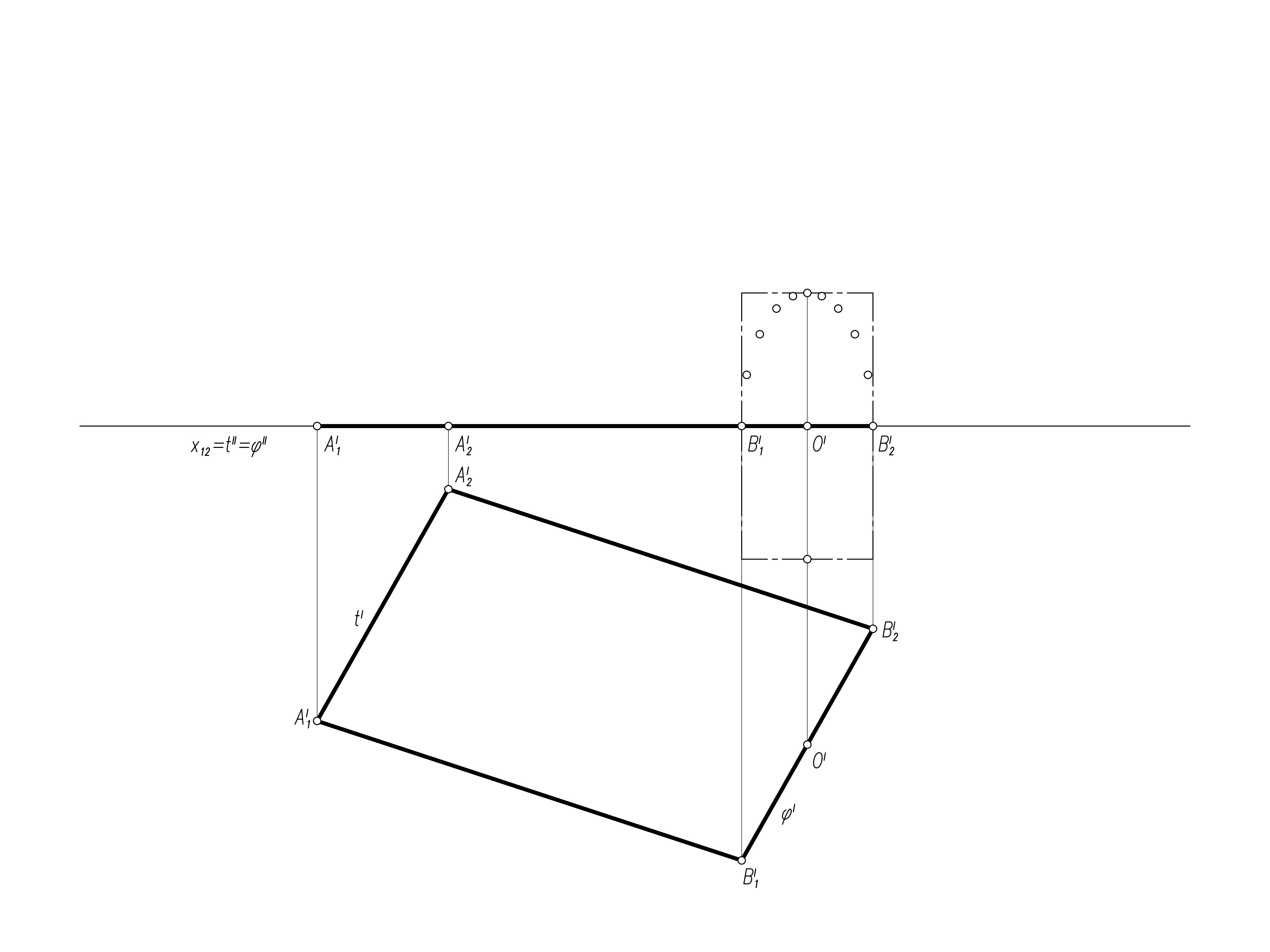
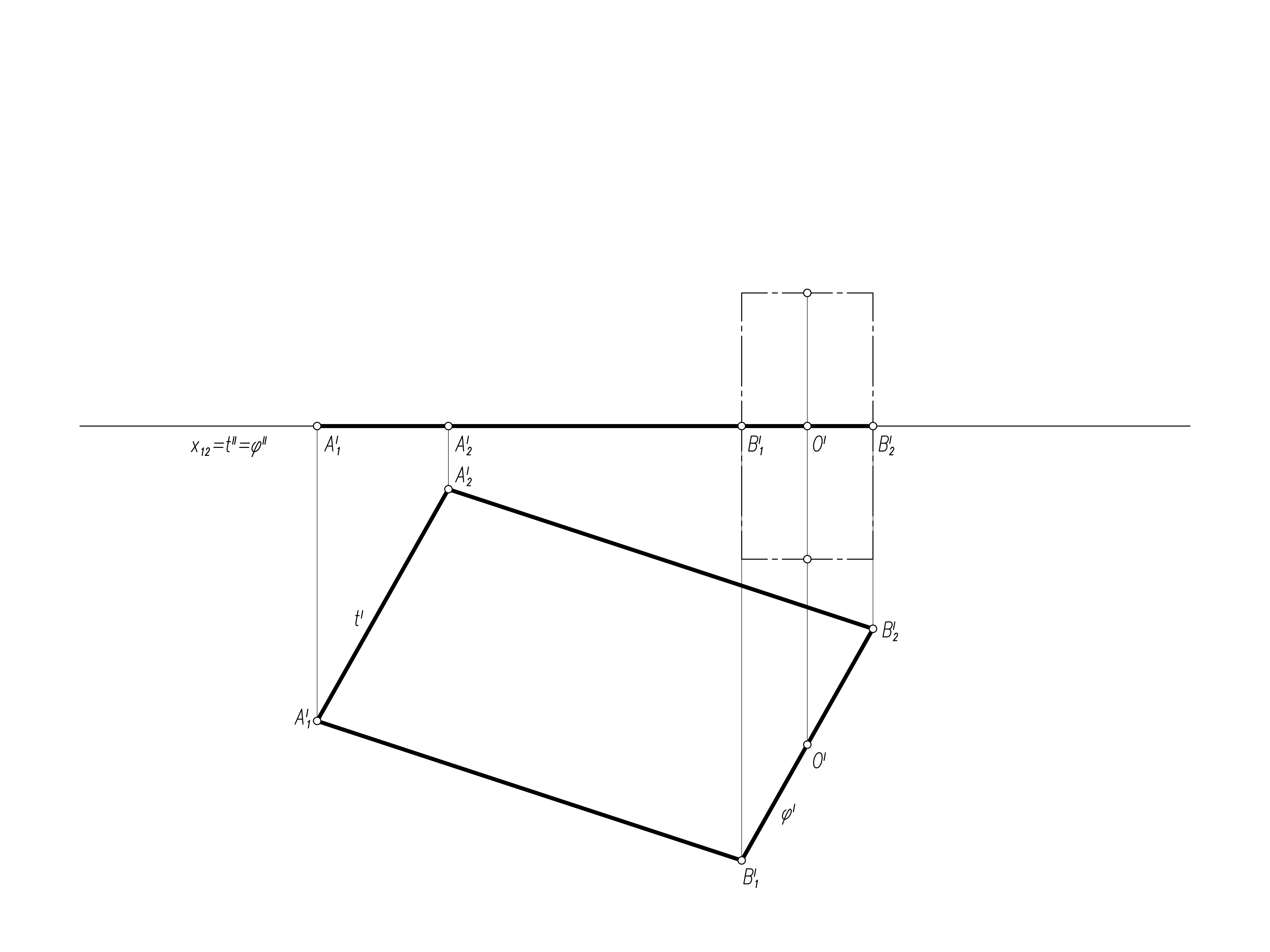
Wykład 17 - Część 3 - Zadanie 1 (konoida)
▶ ODTWÓRZ
⏪ 15s
◀ POPRZEDNI
NASTĘPNY ▶
15s ⏩
PEŁNY EKRAN
1x
1.25x
1.5x
2x
SLAJD:
1
/
23
1
23
Masz pytania do powyższego slajdu? Zadaj je poniżej poprzez formularz kontaktowy.
PYTANIE DO:
Wykład 17 - Część 3 - Zadanie 1 (konoida), SLAJD 1
Twój adres e-mail:
Komentarz:
WYŚLIJ
×
1
23
▶ ODTWÓRZ
⏪ 15s
◀ POPRZEDNI
NASTĘPNY ▶
15s ⏩
WYJDŹ Z PEŁNEGO EKRANU
1x
1.25x
1.5x
2x
SLAJD:
1
/
23